Zx109 P
362 m²
Варіант двоповерхового будинку Zx109 з підвалом.
Ostatnia sztuka w świetnej cenie!
Варіанти: 3
Коментарі: 0
Термін готовності:
30 робочих днів
АРХІТЕКТУРНО-БУДІВЕЛЬНИЙ РОЗДІЛ
ЛІНІЙНІ РОЗМІРИ
рекомендовані розміри ділянки
рекомендовані розміри ділянки - мінімальні розміри, які повинна мати земельна ділянка, щоб будинок міг бути поставлений відповідно до правил
ширина
24,41 m
довжина
24,21 m
Розміри фасаду
Розміри фасаду - габарити фасаду будівлі, включаючи фундамент, виключаючи поверхні вікон і дверей
18,41 m
Лінійні розміри приміщень PDF
площа будинку/загальна площа
площа будинку: площа всіх приміщень будівлі за винятком горища, вимірюється на рівні підлоги без урахування штукатурки і внутрішньої обробки стін.
загальна площа: площа будинку з додаванням площі балконів і терас, розрахованих із знижуючим коефіцієнтом 0,3 (коефіцієнт, який призводить площу балкона, тераси або лоджії до площі повноцінного приміщення будинку).
361,9
/ 377,3
m²
площа забудови
площа забудови: це площа по зовнішньому обводу будівлі на рівні цоколя, включаючи виступаючі частини: вхідні майданчики і східці, веранди, тераси, приямки, входи в підвал, автомобільні пандуси, зовнішні сходи. Площа під будівлею, розташованою на стовпах, проїзди під будівлею, а також виступаючі частини будівлі, що консольно виступають за площину стіни на висоті нижче ніж 4,5 м від поверхні чистої підлоги.
275,7 m²
будівельний об''єм
будівельний об''єм: Будівельний об'єм надземної та підземної частин будинку визначається в межах обмежувальних поверхонь.
2 100 m³
висота будинку
висота будинку - висота розраховується від поверхні чистої підлоги до конькової балки
9,1 m
кут нахилу покрівлі
кут нахилу покрівлі
- кут нахилу покрівлі по відношенню до підлоги.
20° / 2°
площа покрівлі
площа покрівлі - загальна площа даху за виключенням димоходів та вентканалів.
225 m²
тип фундаменту
стрічковий монолітний
Покрівля
цементно-піщана черепиця / металочерепиця / керамічна черепиця
технологія
кам'яний
Тип перекриття
монолітне
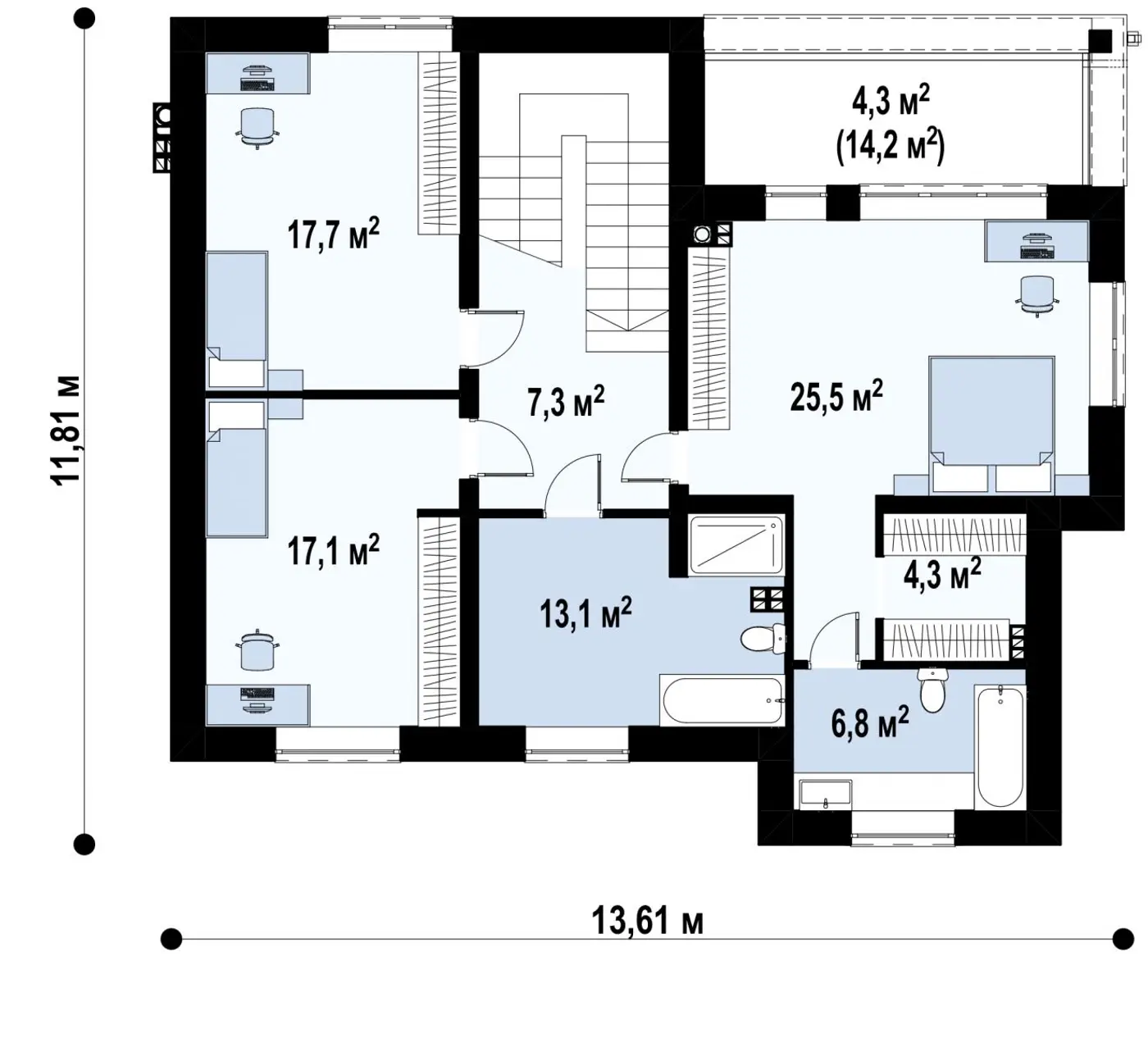
Zx109 P являє собою варіант двоповерхового будинку Zx109 з підвалом.
Переваги проєкту Zx109:
- Будинок характеризується просторою та світлою денною зоною з відкритим інтер'єром і виходом на красиву терасу критого типу. Тут зручно організовувати прийом гостей, організовувати різноманітні свята.
- На першому поверсі також передбачена приватна зона з двома просторими спальнями та ванною кімнатою.
- Перевагою даного проєкту є наявність просторого господарсько-побутового приміщення за гаражем. У ньому можна зберігати велосипеди, ролики, садовий інвентар та інше.
- З гаража є можливість перейти в будинок. Завдяки такому плануванні значно підвищується рівень комфорту проживання членів сім'ї.
- Наявність підвального приміщення дарує майже 110 м² додаткової площі для реалізації найоригінальніших ідей.
- На другому поверсі спроєктована нічна частина будинку з трьома спальнями та загальною ванною кімнатою.
Проєкт Zx109 - відмінне рішення просторого, сучасного, функціонального будинку для великої родини, де є літні родичі або маленькі діти.
Додаткова інформація про проект та його придбання
Усі матеріали, які розміщені на сайті нашої компанії охороняються авторським правом. Використання будь-якої інформації сайту (копіювання, пересилання, відтворення, публікація в будь-якому вигляді, ін.) Може здійснюватися тільки при наявності дозволу компанії Z500 в письмовому вигляді. Це стосується будь-якого відео, графічної, текстової, числової інфрмації, файлів для скачування. Інформація сайту може використовуватися тільки в некомерційних цілях за умови посилання на наше архітектурне бюро.
Zx109 P
362 m²
кам'яний
Схожі проекти
Варіанти
Ми робимо все можливе для надання послуг найвищого рівня. Якщо ви помітили помилку в функціонуванні сервісу або неточності в опублікованих матеріалах (незважаючи на те, що це не є підставою для претензій до z500) обов'язково повідомте свої зауваження чи побажання за адресою (project@z500.biz) оскільки ми постійно вдосконалюємо продукти, сервіс і послуги.

Коментарі